物件情報 印刷用画面
レジオン大洲公園
◆高層階なので、広いバルコニーで眺望を楽しめます!
◆3面バルコニーから光差し込む明るい室内です!
◆広々リビングでは、一家団欒、ゆったりと過ごすことができます!
◆平面駐車場1台分あり!
| 物件番号 | 32507018 |
|---|
| 所在地 | 大分市西新地2丁目77番地 | ||
|---|---|---|---|
| 価格 | 1,690万円 | ||
| 交通 交通の利便 |
[電車] JR日豊本線(門司港~佐伯) 牧駅 距離 2900m 西新地二丁目バス停まで徒歩4分 |
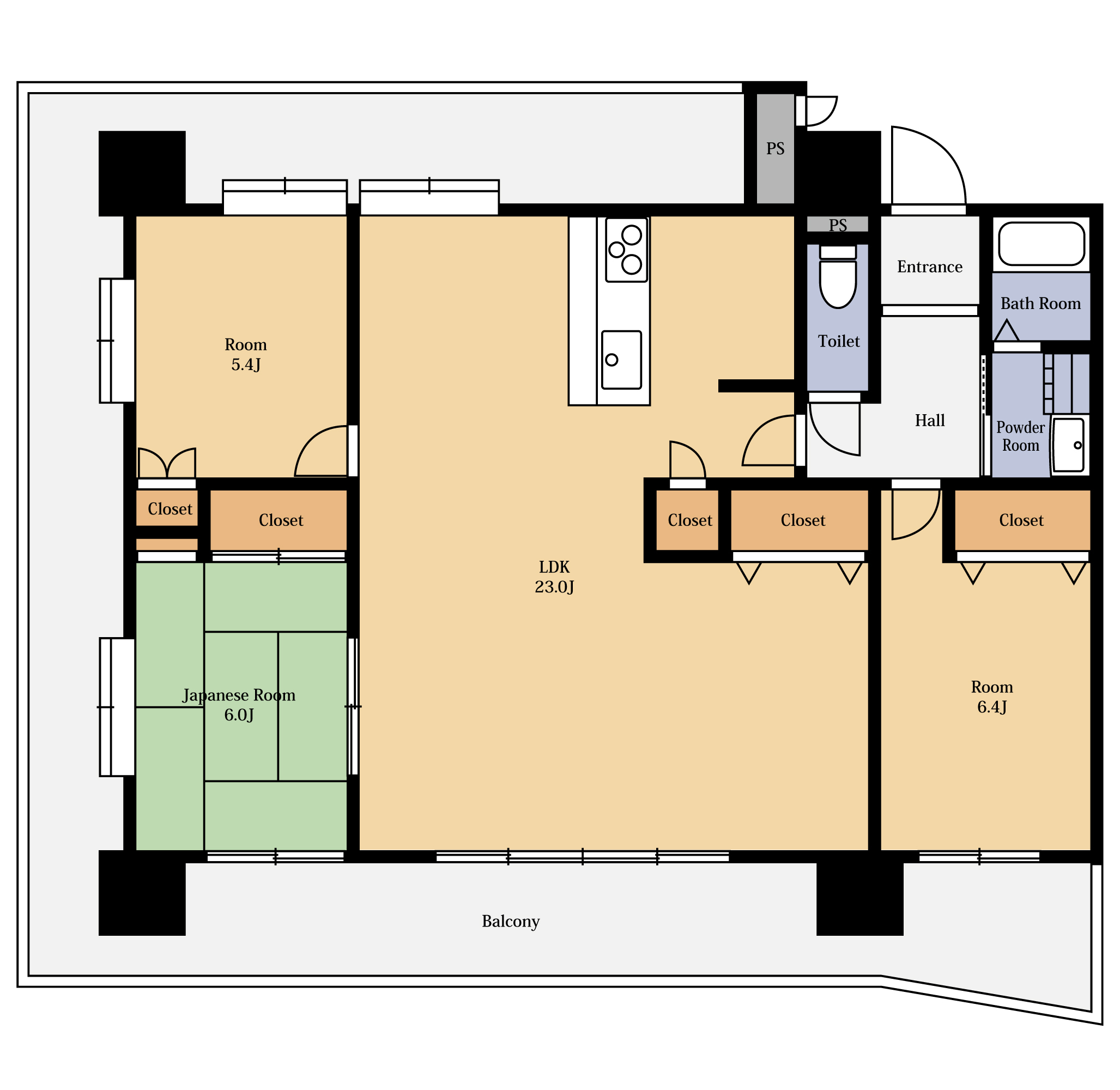
専有面積 | 壁芯 85.95㎡(25.99坪) |
| バルコニー | 39.53㎡(11.95坪) | 間取り | 3 LDK |
| 建物構造 | SRC造 | 築年月(築年数) | 1998年01月(築28年) |
| BREAK_LINE | 建物規模(階数) | 13階建 12階部分 | |
| 管理費 | 8,000円/月 | 修繕積立金 | 8,000円/月 |
| 駐車場 | 有 5,000円/月 | バイク置場 | -- |
| 駐輪場 | -- | 用途地域 | 準工業地域 |
| 土地権利 | 所有権 | 国土法届出 | -- |
| 管理形態 | 全部委託 | 管理方式 | 不在 |
| マンション管理会社 | 秀和コミュニティー | 取引態様 | 専任媒介 |
| 現況 | 空家 | 総戸数 | 24戸 |
| 主要採光面 | 南 | 引き渡し可能年月 | 相談 |
| ランニングコスト | ※備考欄のご確認もお願いします。 | その他一時金 | -- |
| BREAK_LINE | 小学校 | 舞鶴小学校 | |
| 小学校までの距離 | -- | 中学校 | 城東中学校 |
| 中学校までの距離 | -- | ||
| 特徴設備 | オートバス、追焚機能、温水洗浄便座、シャワー付洗面化粧台、3口以上コンロ、カウンターキッチン、システムキッチン、全居室収納、クローゼット、照明器具、室内洗濯機置場、給湯、出窓、CATV、オートロック、モニタ付インターホン、3面バルコニー、エレベーター、3面採光、角部屋 | ||
| 備考 | -- | ||
| その他制限事項 | |||
| 情報公開日 | 2025年07月21日 | 情報更新日 | 2026年02月27日 |
| 次回更新予定日 | 2026年03月12日 | 取引条件の有効期限 | 2026年03月12日 |
※入居時には、入居時情報の各費用と賃料が必要です。なお、入居者が決まっていた場合にはご容赦ください。
※キャンペーン中は初期費用が違う場合がありますので詳細は係員までお問い合わせください。
※掲載されている写真・間取り図は、実際と異なる場合があります。
※本物件は短期解約違約金特約がありますので、ご注意ください。
| 外観写真 | 間取り図 |
|---|---|
|
|
| お問い合わせ先 |
〒870-0023 大分市長浜町3-16-3 グリーンヒル舞鶴リバープレイス1F 0120-300-118(フリーダイヤル)/ 097-574-6807 営業時間 9:00 - 18:00 定休日 水曜日 |
|---|