物件情報 印刷用画面
花津留2号地 新築戸建
◇物件情報◇
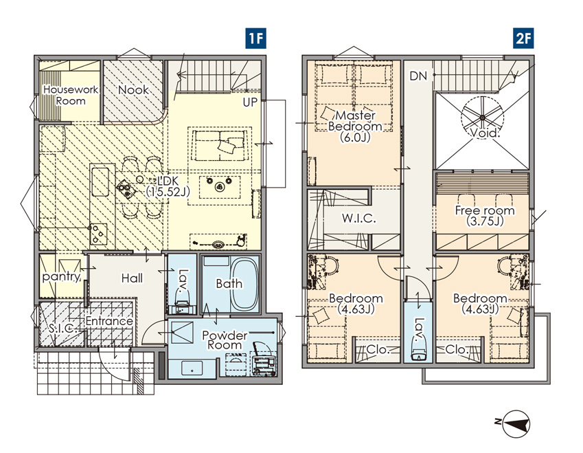
・玄関横にシューズクローゼット、2階主寝室にウォークインクローゼット付
・パントリー、家事室有
・2階にフリールーム、1階にヌック有
・ランドリー、風呂、トイレが近く家事のしやすい間取り
・1、2階トイレ有
| 物件番号 | 32510015 |
|---|
| 所在地 | 大分市花津留2丁目64-2 | ||
|---|---|---|---|
| 価格 | 4,680万円(税込) | ||
| 交通 交通の利便 |
[電車] JR日豊本線(門司港~佐伯) 牧駅 徒歩 16分 [バス] 天満宮入口 徒歩 2分 天満宮入口バス停まで170m |
建物面積 | 104.56㎡(31.62坪) |
| 土地面積 | 155.03㎡(46.89坪) | 間取り | 3 SLDK |
| 建物構造 | 木造 | 駐車場 | 有 3台 |
| 物件面積(1F) | 55.71㎡(16.85坪) | 物件面積(2F) | 48.85㎡(14.77坪) |
| 物件面積(3F) | -- | 建物規模(階数) | 2階建 |
| 築年月 (工事完了予定年月) |
2026年03月(新築) | 現況 | 完成済 |
| 引き渡し可能年月 | 2026年04月予定 | 総区画数 | 3 |
| 総戸数 | 1 | 販売戸数 | 1 |
| 私道負担面積 | -- | 地目 | 宅地 |
| 都市計画 | 市街化区域 | 主要採光面 | -- |
| 用途地域 | 第2種中高層住居専用 | 土地権利 | 所有権 |
| 国土法届出 | -- | 建ぺい率 | 60% |
| 容積率 | 200% | 取引態様 | 売主 |
| 建築確認番号 | R071043号 | セットバック | -- |
| 地勢 | 平坦 | ランニングコスト | ※備考欄のご確認もお願いします。 |
| その他一時金 | -- | BREAK_LINE | |
| 小学校 | 津留小学校 | 小学校までの距離 | 550m |
| 中学校 | 城東中学校 | 中学校までの距離 | 1,700m |
| 接道状況 (道路の幅員) |
西側 幅員約8.66mの市道に接道 | ||
| 共有施設の負担金 | -- | ||
| 特徴設備 | オートバス、バス1坪以上、浴室暖房、浴室乾燥機、トイレ2ヶ所、温水洗浄便座、シャワー付洗面化粧台、システムキッチン、グリル、食器洗浄乾燥機、浄水器、全居室収納、クローゼット、ウォークインクローゼット、シューズIC、照明器具、都市ガス、複層ガラス、全居室フローリング、電気、上水道、下水道、エアコン、シーリングファン、モニタ付インターホン、カードキー、火災警報器(報知機)、駐車場3台分、デザイナーズ、24時間換気システム、吹抜、2×6工法、前面棟無、整形地、閑静な住宅街 | ||
| 備考 |
・屋外広告物禁止地域、居住推奨区域 ・九州電力、都市ガス、公営水道、公共下水 ・下水道受益者負担金365円/㎡ |
||
| その他制限事項 | 屋外広告物禁止地域、居住推奨区域 | ||
| 情報公開日 | 2024年12月09日 | 情報更新日 | 2026年03月02日 |
| 次回更新予定日 | 2026年03月15日 | 取引条件の有効期限 | 2026年03月15日 |
※入居時には、入居時情報の各費用と賃料が必要です。なお、入居者が決まっていた場合にはご容赦ください。
※キャンペーン中は初期費用が違う場合がありますので詳細は係員までお問い合わせください。
※掲載されている写真・間取り図は、実際と異なる場合があります。
※本物件は短期解約違約金特約がありますので、ご注意ください。
| 外観写真 | 間取り図 |
|---|---|
|
|
| お問い合わせ先 |
〒870-0904 大分市向原東2丁目2番30号 0120-252-737(フリーダイヤル)/ 097-574-6332 営業時間 9:00 - 18:00 定休日 火曜・水曜 |
|---|