土地
ふじが丘みそらガーデン 分譲地

物件番号32501004
お問い合わせする
外観
区画図・字図
外観
外観
外観
外観

外観1

2022年1月撮影

1/ 30

外観
区画図・字図
外観
外観
外観
外観
外観
区画図・字図
外観
外観
外観
外観

外観1

2022年1月撮影

1 / 7

22号地

価格

1680万円

土地面積
363.32㎡ (109.9 坪)
坪単価
15.28万円

おすすめ建物セットプラン

土地価格
1680万円
建物+外構+消費税
2400万円
合計金額
4080万円
延床面積
105.16㎡(31.81 坪)
月々のお支払い
■月々のお支払い例:89,343円 ■頭金/ 0 円■ボーナス時/年0 回 ■お支払い例について 返済期間50 年、九州ろうきん、変動金利1.145% にて算出。2025年5月18日現在で算出しており、金利状況および金融機関により変更が生じる場合があります。なお、審査によっては、ご希望に添えない場合もございますので、ご了承ください。 ※別途登録に伴う諸費用が必要です。※セットプランに外構費、諸費用は含まれません。

建物プラン例

※画像をクリックすると拡大画像が表示されます
建物プラン例(外観)

建物プラン例(外観)

画像は図面をもとに作成したCGパースです。 プランは一例です。プランはお客様にてご自由にお選びいただけます。

建物プラン例(外観)

建物プラン例(外観)

画像は図面をもとに作成したCGパースです。 プランは一例です。プランはお客様にてご自由にお選びいただけます。

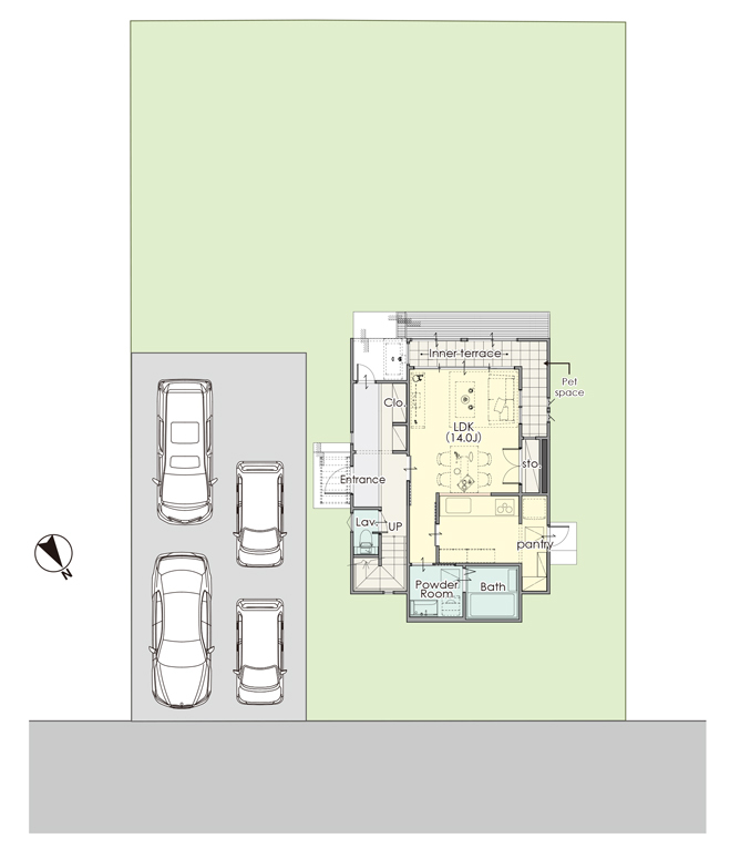
建物プラン例(間取)

建物プラン例(間取)

4LDK+PET SPACE 1階面積:52.99㎡(約16.02坪) 2階面積:52.17㎡(約15.78坪)

区画図

区画図

配置図イメージ。 プランは一例です。プランはお客様にてご自由にお選びいただけます。

23号地

価格

1780万円

土地面積
403.23㎡ (121.97 坪)
坪単価
14.59万円

おすすめ建物セットプラン

土地価格
1780万円
建物+外構+消費税
2500万円
合計金額
4280万円
延床面積
88.82㎡(26.86 坪)
月々のお支払い
■月々のお支払い例:93,723円 ■頭金/ 0 円■ボーナス時/年0 回 ■お支払い例について 返済期間50 年、九州ろうきん、変動金利1.145% にて算出。2025年5月18日現在で算出しており、金利状況および金融機関により変更が生じる場合があります。なお、審査によっては、ご希望に添えない場合もございますので、ご了承ください。 ※別途登録に伴う諸費用が必要です。※セットプランに外構費、諸費用は含まれません。

建物プラン例

※画像をクリックすると拡大画像が表示されます
建物プラン例(外観)

建物プラン例(外観)

画像は図面をもとに作成したCGパースです。 プランは一例です。プランはお客様にてご自由にお選びいただけます。

建物プラン例(外観)

建物プラン例(外観)

画像は図面をもとに作成したCGパースです。 プランは一例です。プランはお客様にてご自由にお選びいただけます。

建物プラン例(間取)

建物プラン例(間取)

3LDK 1階面積:51.34㎡(約15.53坪) 2階面積:42.23㎡(約12.77坪)

区画図

区画図

配置図イメージ。 プランは一例です。プランはお客様にてご自由にお選びいただけます。

24号地

価格

1880万円

土地面積
440.45㎡ (133.23 坪)
坪単価
14.11万円

おすすめ建物セットプラン

土地価格
1880万円
建物+外構+消費税
2300万円
合計金額
4180万円
延床面積
88.82㎡(26.86 坪)
月々のお支払い
■月々のお支払い例:91,533円 ■頭金/ 0 円■ボーナス時/年0 回 ■お支払い例について 返済期間50 年、九州ろうきん、変動金利1.145% にて算出。2025年5月18日現在で算出しており、金利状況および金融機関により変更が生じる場合があります。なお、審査によっては、ご希望に添えない場合もございますので、ご了承ください。 ※別途登録に伴う諸費用が必要です。※セットプランに外構費、諸費用は含まれません。

建物プラン例

※画像をクリックすると拡大画像が表示されます
建物プラン例(外観)

建物プラン例(外観)

画像は図面をもとに作成したCGパースです。 プランは一例です。プランはお客様にてご自由にお選びいただけます。

建物プラン例(外観)

建物プラン例(外観)

画像は図面をもとに作成したCGパースです。 プランは一例です。プランはお客様にてご自由にお選びいただけます。

建物プラン例(間取)

建物プラン例(間取)

3LDK+DECK 1階面積:44.11㎡(約13.34坪) 2階面積:44.71㎡(約13.52坪)

POINT

美しい自然の景観が見晴らせる、眺望の良い立地です。

【ふじが丘みそらガーデン 分譲地】
美しい自然の景観が見晴らせる、眺望の良い立地です。

5号地:済
6号地:済
21号地:済
22号地:1680万円 363.32㎡(専用庭 約126.63㎡(38.29坪)を含む)
23号地:1780万円 403.23㎡(専用庭 約139.41㎡(42.17坪)を含む)
24号地:1880万円 440.45㎡(専用庭 約146.86㎡(44.42坪)を含む)

【周辺施設】
田尻小学校(徒歩10分~12分/約800m~920m)
稙田南中学校(徒歩32分~33分/約2500m~2620m)
サンライフ トマト店(徒歩27分~28分/約2100m~2220m)
トキハインダストリー アテオ 光吉店(徒歩24分~26分/約1900m~2020m)

物件情報

所在地
大分市大字岡川1488
価格
1,680万円 〜 1,880万円 ローンシミュレーション
交通

交通の利便
[電車] JR豊肥本線 敷戸駅 徒歩 38分
[バス] ふじが丘南 徒歩 5分
ふじが丘南バス停まで約400m
土地面積
363.32㎡ 〜 440.45㎡ (109.9坪 〜 133.23坪)
私道負担面積
--
開発面積
--
許可番号
大分指令第3577号
坪単価
14.11万円 〜 15.28万円
都市計画
市街化区域
共有施設等の負担金
--
引渡日
【相談】
工事完了予定
--
地勢
--
総区画数
24
販売区画数
3
地目
宅地
用途地域
第1種低層住居専用
建ぺい率
50%
容積率
100%
土地権利
所有権
国土法届出
--
取引態様
売主
現況
更地
セットバック
--
ランニングコスト
※備考欄のご確認もお願いします。
その他一時金
--
小学校
田尻小学校
小学校までの距離
800~920
中学校
稙田南中学校
中学校までの距離
2500~2620
接道状況
(道路の幅員)
5・6号地:西側幅員約6mの市道に接道
21~24号地:北側幅員約6mの市道に接道
借地の旨
--
建築条件付き
あり ※建築条件付宅地:土地契約後、3ヶ月以内に株式会社ベツダイと建築請負契約が成立しない場合は、土地契約は無効となり手付金等は全額買主へ返還いたします。
特徴設備
プロパンガス、電気、上水道、下水道、側溝
備考
・法令上の制限:大分市宅地造成規制区域、屋外広告物禁止地域、居住推奨区域、21号地~24号地 土砂災害警戒区域(レッド・イエロー)一部有り
・九州電力、公営水道、公共下水、戸別プロパン
・下水道受益者負担金:320円/ ㎡
・街並みルールあり
その他制限事項
--
情報公開日
2025年01月10日
情報更新日
2026年05月18日
次回更新予定日
2026年05月31日
取引条件の有効期限
2026年05月31日

地図

最寄りの学校

小学校
田尻小学校
小学校までの距離
800~920
中学校
稙田南中学校
中学校までの距離
2500~2620

環境情報

田尻小学校(徒歩10分~12分/約800m~920m)

田尻小学校(徒歩10分~12分/約800m~920m)

稙田南中学校(徒歩32分~33分/約2500m~2620m)

稙田南中学校(徒歩32分~33分/約2500m~2620m)

サンライフ トマト店(徒歩27分~28分/約2100m~2220m)

サンライフ トマト店(徒歩27分~28分/約2100m~2220m)

トキハインダストリー アテオ 光吉店(徒歩24分~26分/約1900m~2020m)

トキハインダストリー アテオ 光吉店(徒歩24分~26分/約1900m~2020m)

お問い合わせ先

ベツダイホーム(住宅事業本部)

〒870-0904 大分市向原東2丁目2番30号

0120-252-737 (フリーダイヤル)

097-574-6332 (TEL)

営業時間 9:00 - 18:00 定休日 火曜・水曜