戸建 新築
雄城台中央1区画 B-HAUS

物件番号32604017
お問い合わせする
外観
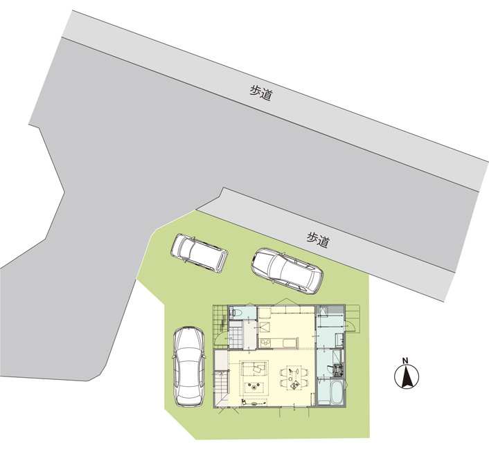
間取図(平面図)
区画図・字図

外観1

2022年1月撮影

1/ 30

外観
間取図(平面図)
区画図・字図
外観
間取図(平面図)
区画図・字図

外観1

2022年1月撮影

1 / 7

価格
3,880万円(税込)
建物面積
99.36㎡(30.05坪)
建物構造
木造
間取り
4 LDK
土地面積
165.44㎡(50.04坪)
建物規模(階数)
2階建
築年月(工事完了予定年月)
2026年08月(新築)
所在地/地番
大分市雄城台中央一丁目653 番168
交通
[電車] JR久大本線 豊後国分駅 距離 3400m
[バス] 下芹 徒歩 5分

POINT

駐車4台×4LDK+フリースペース。家族の成長に寄り添うゆとり設計と、生活利便施設が徒歩圏に揃う雄城台中央の新築邸宅。

・駐車4台可能で来客時や将来の車増にも安心
・4LDK+フリースペースで在宅ワークや趣味部屋にも対応
・2×4工法&省令準耐火構造で安心の住まい性能
・食洗機・全室照明・電子キーなど充実設備で快適生活
・稙田中学校徒歩約5分で子育て世帯にも安心の立地
・サンリブわさだやトキハわさだタウンが徒歩圏で買物便利
・医療施設も近く、日常の安心を支える住環境
・第一種低層住居専用地域で落ち着いた街並み
・北西角地&前面道路約6mで開放感と車の出し入れもスムーズ

物件情報

住居表示
カーナビ検索
870-1164 大分県大分市雄城台中央1丁目2-6
価格
3,880万円(税込) ローンシミュレーション
交通

交通の利便
[電車] JR久大本線 豊後国分駅 距離 3400m
[バス] 下芹 徒歩 5分
豊後国分駅まで車で9分
建物面積
99.36㎡(30.05坪)
土地面積
165.44㎡(50.04坪)
間取り
4 LDK
建物構造
木造
駐車場
--
物件面積(1F)
49.68㎡(15.02坪)
物件面積(2F)
49.68㎡(15.02坪)
物件面積(3F)
--
建物規模(階数)
2階建
築年月
(工事完了予定年月)
2026年08月(新築)
現況
建築中
引き渡し可能年月
2026年09月予定
総区画数
1
総戸数
1
販売戸数
1
私道負担面積
--
地目
宅地
都市計画
市街化区域
主要採光面
--
用途地域
第1種低層住居専用
土地権利
所有権
国土法届出
--
建ぺい率
50%
容積率
100%
取引態様
売主
建築確認番号
R080063 号
セットバック
--
地勢
--
ランニングコスト
※備考欄のご確認もお願いします。
その他一時金
--
小学校
稙田小学校
小学校までの距離
1,600m
中学校
稙田中学校
中学校までの距離
400m
接道状況
(道路の幅員)
北側 幅員約6mの市道に接道、西側幅員約6mの市道に接道
特徴設備
--
備考
屋外広告物禁止地域、居住推奨区域、市街地エリア、高さ制限10m 外壁後退1.0m、宅地造成等工事規制区域
公共下水受益者負担金:有
その他制限事項
備考に記載しております。
情報公開日
2026年04月16日
情報更新日
2026年04月17日
次回更新予定日
2026年04月30日
取引条件の有効期限
2026年04月30日

地図

最寄りの学校

小学校
稙田小学校
小学校までの距離
1,600m
中学校
稙田中学校
中学校までの距離
400m

環境情報

トキハインダストリーわさだタウンまで1280m 徒歩16分

トキハインダストリーわさだタウンまで1280m 徒歩16分

大分市立稙田中学校まで536m 徒歩7分

大分市立稙田中学校まで536m 徒歩7分

稙田小学校まで1600m 徒歩20分

稙田小学校まで1600m 徒歩20分

セブンイレブン大分わさだ北店まで570m 徒歩8分

セブンイレブン大分わさだ北店まで570m 徒歩8分

ローソン大分上宗方店まで741m 徒歩10分

ローソン大分上宗方店まで741m 徒歩10分

ディスカウントドラッグコスモス上宗方店まで419m 徒歩6分

ディスカウントドラッグコスモス上宗方店まで419m 徒歩6分

ドラッグストアモリ上宗方店まで727m 徒歩10分

ドラッグストアモリ上宗方店まで727m 徒歩10分

ディスカウントドラッグコスモスわさだ店まで617m 徒歩8分

ディスカウントドラッグコスモスわさだ店まで617m 徒歩8分

ニトリ大分わさだ店まで893m 徒歩12分

ニトリ大分わさだ店まで893m 徒歩12分

大分県立大分雄城台高校まで1206m 徒歩16分

大分県立大分雄城台高校まで1206m 徒歩16分

社会医療法人三愛会大分三愛メディカルセンターまで970m 徒歩13分

社会医療法人三愛会大分三愛メディカルセンターまで970m 徒歩13分

お問い合わせ先

ベツダイホーム(住宅事業本部)

〒870-0904 大分市向原東2丁目2番30号

0120-252-737 (フリーダイヤル)

097-574-6332 (TEL)

営業時間 9:00 - 18:00 定休日 火曜・水曜